觀看原圖
相簿列表
»
1130925三行室內設計
下一張
下一張
下一張
下一張
1 of 80
旋轉
設為相片牆主圖
設為相簿封面
編輯標題描述
刪除
標記人臉
新增文字標籤
1.jpg
儲存
取消
分享:
語法▼
複製語法
大 1024
中 600
小 450
大縮圖 (170 x 170)
中縮圖 (120 x 120)
小縮圖 (90 x 90)
使用此語法將相片貼至頁面上:
複製
分享至痞客邦部落格
分享連結
將此連結分享給你的朋友:
複製
下載此相片
PIXNET
Facebook
Yahoo!
Google
MSN
您尚未登入,將以
訪客
身份留言。亦可以上方服務帳號登入留言
訪客身份留言將無法觀看版主回覆,建議您登入之後再留言。
請輸入左方認證碼:
看不懂,換張圖
其他選項
送出留言
艾薇。到處走
相簿
部落格
留言板
名片
所有相簿
(434)
此圖片出現在:
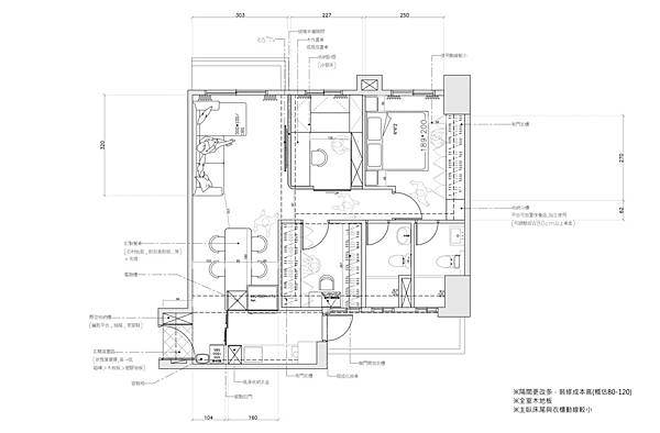
台南室內設計推薦【三行設計】開箱質感圓潤奶茶系新家~處處是弧形設計巧思!與我的專屬更衣室!玻璃圓弧書房/雲朵電視板/弧格置物櫃
相片資訊
本日人氣:
0
累積人氣:
0
展開
檔案大小:
242 kb
尺寸:
1832 x 1200
關閉視窗